
仿佛一句浮生掠影的微嘆
穿過堂前幾許燈火闌珊
草木湖泊遙映著山河漫漫
看鏡中月光滿宮扇
仿佛半世風起云涌的片段
穿過殿內幾許屏風御案
青芝岫石吟說著往日璀璨
如塵埃沒入盛衰棋盤

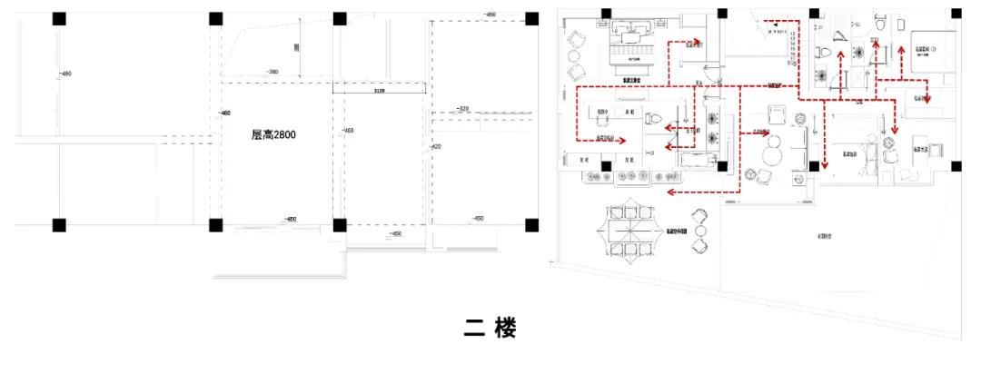
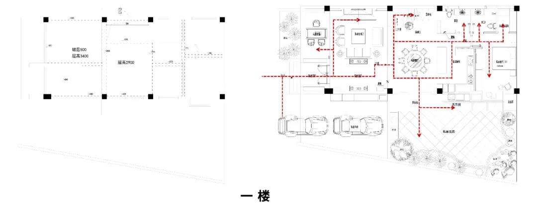
項目地址 山語間
項目面積 280m²
設計風格 新中式
常住人口 3-4人






·會客廳·
·living room·

·餐廳·
·Dinner room·

·起居室·
·Sitting room·

·主臥·
·Master bedroom·

·主衛·
·Main bathroom·
主衛采用雙臺盆的設計,方便主人進行梳洗打扮。浴缸、淋浴間、馬桶均單獨隔開,盡可能減少衛生間的積水情況,保持衛生間的清潔,方便打掃,也是為了健康。除此之外,衛生間的裝潢均采用黃銅金屬、大理石花紋,打造出奢華之感。